赛瑞景观设计部后期配合所所长黄小云针对近几个月跟进的施工现场,遇到设计图纸及施工图纸在施工工艺中难以实现的问题进行实例解析,为项目后期配合服务提供经验及技术支持与指导。
一、施工图纸 VS 现场照片
01 椭圆水池
现场先贴侧板,再贴压顶,施工顺序有误。
02 镜面水池
成品万能支撑器安装图
03 烧结砖
多为带孔空心砖,设计中尽量避免烧结砖收边露孔
避免烧结砖向心铺装贴样式,会出现缝隙大小不均一
现场按向心铺装的效果,缝隙出现大小头
04 洗米石粒径
建议多选用6-9mm圆颗粒状,容易出效果。为防止石米脱落,设计尽量选用高标号(如强度42.5)白水泥,最终效果石米颗粒饱满。
洗石米的施工流程
05 圆形树池
打线包边: 圆形树池下拨打线包边,建议标注弧度。施工单位经常为节省成本,用规格板300*300*30石材铺贴。容易出现棱角。

拼接:圆形树池或水池,侧板的石材规格导致施工中拼接不顺。这种情况经常出现。如图中半径1米的水池,其侧板规格是300*250*25。建议采用规格300*100*25,且施工中每片侧板需倒45度角才能做出半径1米的弧度。
水池现场施工照片
先贴压顶,后贴侧面
圆形树池侧面铺贴工法,树池压顶与侧板对缝效果
06 冰裂纹与排水沟冰裂纹与排水沟收口问题。冰裂纹的铺贴,每块石材至少需要切割4刀以上,直接用线性排水沟收边,在施工工法上难以做到缝隙一致,且2公分宽线性排水不能满足排水需要,建议采用石材水沟盖板收口。
施工现场照片
07 EPDM安全胶垫与排水沟盖板收口问题。排水沟盖板时常打开清理,而安全胶垫边角强度底,容易崩角。建议在有安全胶垫的四周加一道石材波打线收边。
08 水池防水材料采用SBS卷材防水,SBS防水卷材成本较高,与水泥砂浆粘结性能低,水池中预留的空洞较多,不便于施工,水位30cm的水池,建议采用K11防水涂料或911聚氨脂。
SBS防水卷材综合单价约60-100元/平方,聚氨酯综合单价约40-50元/平方。在实际实践中,水池或泳池多采用K11水泥基型防水涂料,有利于石材或马赛克的铺贴,避免出现空鼓
09 泳池池壁铺装泳池池壁铺装采用不同材质,池壁的垂直度难以保证。建议采用同一材质。马赛克一般用3厚白水泥(或专用粘结胶)作粘结剂铺装,花岗岩一般用2公分厚水泥砂浆粘帖。
10 消防车道波打线消防车道波打线弧度太小,且弯度多,不协调。建议直接做直线或大弧度铺装。
11 中式景墙中式景墙一般多采用白墙青瓦,中式韵味会更足一些
新中式围合院景墙实景图
12 花池花池面积约65平米,球类植物过于密集,空间层次难以拉开。
现场四棵杨梅球种植效果
13 售楼中心有刺激气味的地被不适宜种植在售楼中心周边。
14 隐形消防车道隐形消防车道中植草砖标注顺序。对没有经验的施工队来说,容易造成误解。
植草砖施工顺序:石粉垫层—混凝土浇筑—分厚中粗沙找平—铺贴植草砖—回填土方,土块冲水下沉 —植小块草皮。
植草砖停车位效果
15 植草格植草格施工现场
16 主入口平面标高案例中泰天镜项目主入口平面标高图(没有标出室内的标高)
展示区入口现场效果
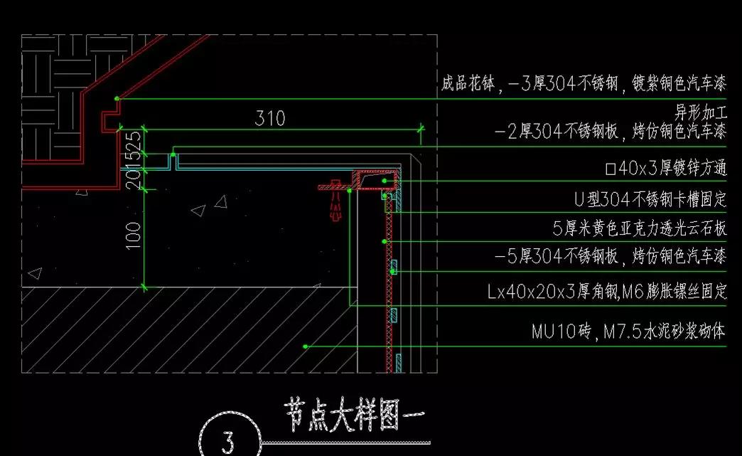
17 不锈钢与石材衔接不锈钢与石材衔接及折弯部位处理效果
不锈钢转角大样图
二、水池施工工艺流程及特点
在园林工程中,水池是较大的构筑物,其施工难度及施工工艺较高,水池施工是整个园林工程的控制性节点。
材料及设备
模板/木方/平板振捣器/钢管(大型游泳池需用到对拉螺杆蝴蝶扣及螺母等)
施工流程
施工放线—地基处理(如有必要)—垫层施工—砖模砌筑—钢筋制作或安装—预埋件安装(给排水管道)—模板安装及固定— 混凝土浇筑—模板坼除—水泥砂浆—找平层—防水层施工—水泥砂浆保护层—饰面铺贴—水池满水实验。
01. 用全站仪定位放线。把水池轮廓线用白灰粉洒线出来
02. 地基处理03. 砖模砌筑及垫层施工,绑扎第一层钢筋
04. 安装给排水管道及电线管,绑扎第二层钢筋
05. 安装池壁模板,混凝土浇筑
06. 钢管对拉螺杆支撑结构示图
泳池实景图
三、特殊水池构筑物施工法
对于大型水池构筑物或水泵房(深度超过5米),在软土或流砂地基上,采用常规由下部基础到上部结构的施工方法存在困难
泵坑平面图(10.8米*7.1米)/ 泵坑剖面图(泵坑净深6米)
沉井施工法
沉井内部构造
沉井下沉办法
方法一:水冲吸泥下沉
方法二:抓土下沉
方法三:触变泥浆套下沉
方法四:爆破法下沉
沉井的特点
优点:埋置深度很大,整体性强,稳定性好 ,对邻近建筑物影响不大,沉井既是基础,又是施工时的挡土和挡土围堰结构物。
缺点:施工工期长,容易出现周边土体流失,沉井下沉过程中遇到大孤石、树干或井底岩层表面倾斜过大时,会对施工造成一定的难度